Aller à :

  • Aller à la recherche
  • Aller au menu principal
  • Aller au contenu
0
  • VENTE
  • Location
  • Nos biens vendus
  • Estimation
  • ALERTE EMAIL
  • Agence
  • BLOG
  • Contact
0
VotreRecherche
Dans un rayon de
Budget
entre et €
Min €
Max €
  1. Agence immobilière Rochefort
  2. Vente
  3. Charente maritime
  4. Rochefort
  5. T7
  6. Maison de charme 7 pieces de 145m2
Coup de coeur
Réf : 614
Maison
Maison de charme, 7 pièces de 145m2
Nombre de pièces 7
Nombre de chambres 3
Salle d'eau 1
TRAD_MELTEM_Superficieterrainenm² 263 m²
330 720 €

Maison de charme, 7 pièces de 145m2 Rochefort (17300)

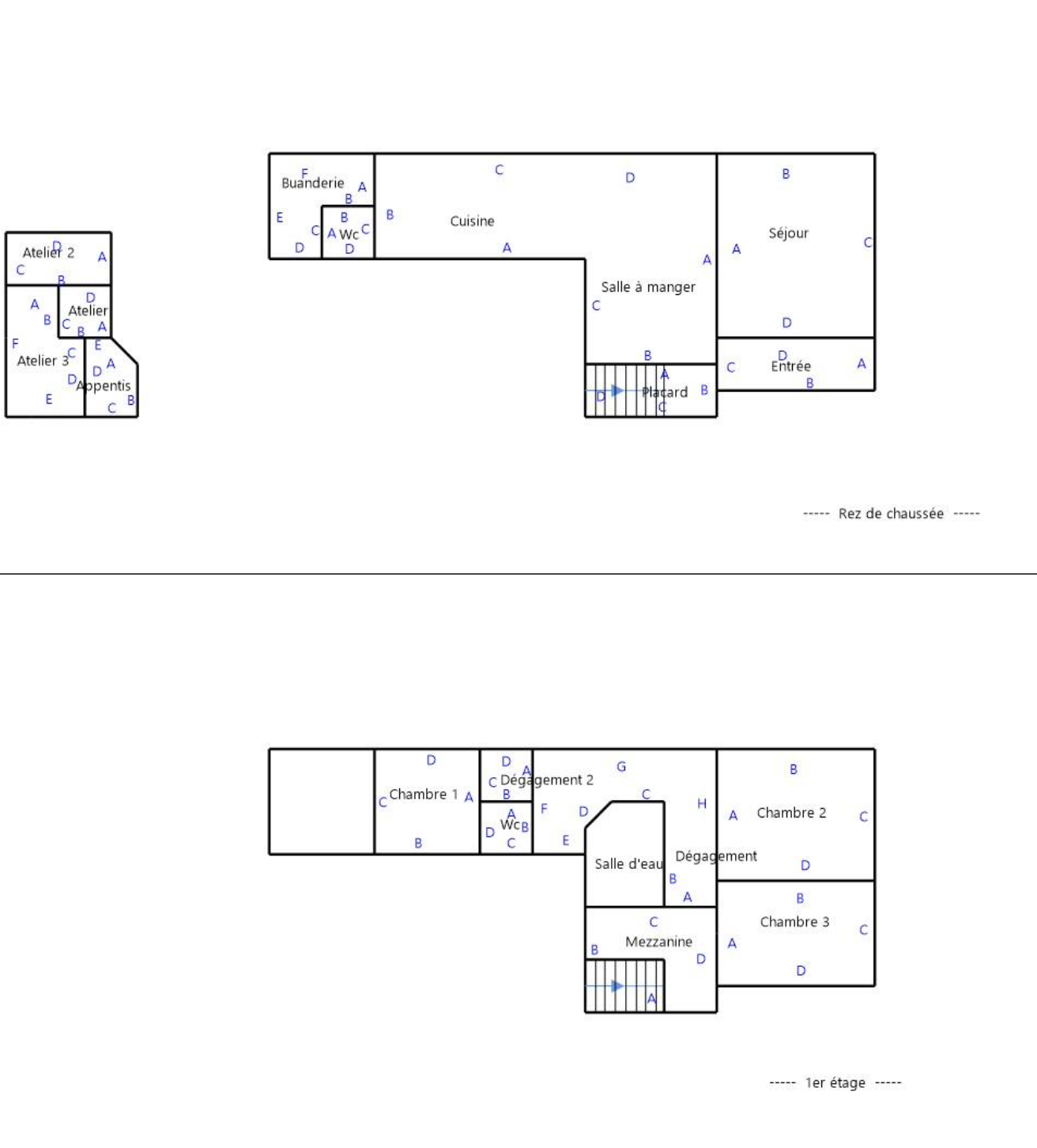
Située dans une rue à sens unique, au calme tout en étant proche des voies d'accès, vous serez charmé par cette maison ancienne de 145m2 édifiée sur deux niveaux. Dès l'entrée, vous serez séduit par ses volumes et son ambiance chaleureuse. Au rez-de-chaussée, une salle à manger lumineuse avec cuisine ouverte aménagée (ensemble de 36 m²) donne accès à une terrasse de 20 m² et à un jardin clos. Un salon cosy indépendant de 25 m² avec cheminée à foyer ouvert, un cellier attenant à la cuisine et des toilettes complètent ce niveau. À l'étage, le palier dessert un espace bureau sur palier, 3 chambres dont l'une avec mezzanine (11,5 à 15,2m2), une salle d'eau et des wc séparés. En extérieur, profitez d'un jardin clos avec, en fond de parcelle, une dépendance atypique agrémentée d'un château d'eau. Celle-ci se compose: d'un atelier d'artiste de 17 m² (dont une pièce chauffée de 12 m² en sus de la surface habitable annoncée), d'un atelier de bricolage et d'un préau. Atouts majeurs : toiture de la maison refaite à neuf, chaudière Viessmann récente et le charme indéniable de l'ensemble. Une visite s'impose !

  • Général
  • Détails +
  • Copropriété
  • Financier
  • DPE
  • Quartier
Caractérisque Valeurs
Code postal 17300
Surface habitable (m²) 148 m²
surface terrain 263 m²
Surface loi Carrez (m²) 145 m²
Nombre de chambre(s) 3
Nombre de pièces 7
Nombre de niveaux 1
Caractérisque Valeurs
Nb de salle d'eau 1
Cuisine Américaine
Type de cuisine Equipée
Mode de chauffage Gaz de ville
Type de chauffage TRAD_TYPE_CHAUFF_CHAUDIERE
Format de chauffage Central
Terrasse OUI
Murs mitoyens 2
Exposition Est-Ouest
Année de construction 1900
Terrain arboré OUI
Caractérisque Valeurs
Copropriété NON
Caractérisque Valeurs
Prix de vente honoraires TTC inclus 330 720 €
Prix de vente honoraires TTC exclus 318 000 €
Honoraires TTC à la charge acquéreur 4 %
Taxe foncière annuelle 1 468 €
DPE GES
  • Commerces et santé
  • Loisirs
  • Ecoles
  • Transports
  • Pratique
Cette offre
vous intéresse

* champs obligatoires

Les informations recueillies sur ce formulaire sont enregistrées dans un fichier informatisé par La Boite Immo agissant comme Sous-traitant du traitement pour la gestion de la clientèle/prospects de l'Agence / du Réseau qui reste Responsable du Traitement de vos Données personnelles.
La base légale du traitement repose sur l’intérêt légitime de l'Agence / du Réseau.
Elles sont conservées jusqu'à demande de suppression et sont destinées à l'Agence / au Réseau.
Conformément à la loi « informatique et libertés », vous pouvez exercer votre droit d'accès aux données vous concernant et les faire rectifier en contactant l'Agence / le Réseau.
Si vous estimez, après avoir contacté l'Agence / le Réseau, que vos droits « Informatique et Libertés » ne sont pas respectés, vous pouvez adresser une réclamation à la CNIL.
Nous vous informons de l’existence de la liste d'opposition au démarchage téléphonique « Bloctel », sur laquelle vous pouvez vous inscrire ici : https://www.bloctel.gouv.fr 
Dans le cadre de la protection des Données personnelles, nous vous invitons à ne pas inscrire de Données sensibles dans le champ de saisie libre
Ce site est protégé par reCAPTCHA, les Politiques de Confidentialité et les Conditions d'Utilisation de Google s'appliquent.

Partager le bien
Nos outils
Imprimer Imprimer
Calculatrice financière

* Champ obligatoire

Partager l'annonce

* champs obligatoires

Les informations recueillies sur ce formulaire sont enregistrées dans un fichier informatisé par La Boite Immo agissant comme Sous-traitant du traitement pour la gestion de la clientèle/prospects de l'Agence / du Réseau qui reste Responsable du Traitement de vos Données personnelles.
La base légale du traitement repose sur l’intérêt légitime de l'Agence / du Réseau.
Elles sont conservées jusqu'à demande de suppression et sont destinées à l'Agence / au Réseau.
Conformément à la loi « informatique et libertés », vous pouvez exercer votre droit d'accès aux données vous concernant et les faire rectifier en contactant l'Agence / le Réseau.
Si vous estimez, après avoir contacté l'Agence / le Réseau, que vos droits « Informatique et Libertés » ne sont pas respectés, vous pouvez adresser une réclamation à la CNIL.
Nous vous informons de l’existence de la liste d'opposition au démarchage téléphonique « Bloctel », sur laquelle vous pouvez vous inscrire ici : https://www.bloctel.gouv.fr 
Dans le cadre de la protection des Données personnelles, nous vous invitons à ne pas inscrire de Données sensibles dans le champ de saisie libre
Ce site est protégé par reCAPTCHA, les Politiques de Confidentialité et les Conditions d'Utilisation de Google s'appliquent.

Détail des diagnostics énergétiques
DPE GES

Montant estimé des dépenses annuelles d'énergie pour un usage standard est compris entre 2 010 € et 2 760 € . Prix moyens des énergies indexés sur les années 2021, 2022 et 2023 (abonnements compris).

Partager avec vos proches

Facebook Facebook
Messenger Messenger
Twitter Twitter
WhatsApp WhatsApp
LinkedIn LinkedIn
Copier le lien Copier le lien
Autres biens

Ces biens peuvent aussi vous intéresser

Maison

Maison familiale de 145m2- 5 chambres- Proche gare et port

Rochefort (17300)
Voir le bien
Maison

Maison 7 pièces de 153m2 sur 1000m2 de terrain clos

Rochefort (17300)
Voir le bien
Se connecter
Espace propriétaire
Page d'accueil
Adhérents

© 2025 | Tous droits réservés | Traduction powered by Google |

  • Nos honoraires
  • Plan du site
  • Mentions légales
  • Admin
  • Nos liens
  • Politique RGPD
  • LinkedIn

Comme beaucoup, notre site utilise les cookies

On aimerait vous accompagner pendant votre visite. En poursuivant, vous acceptez l'utilisation des cookies par ce site, afin de vous proposer des contenus adaptés et réaliser des statistiques !

Paramétrer

Cookies fonctionnelsCes cookies sont indispensables à la navigation sur le site, pour vous garantir un fonctionnement optimal. Ils ne peuvent donc pas être désactivés.

Statistiques de visitesPour améliorer votre expérience, on a besoin de savoir ce qui vous intéresse !
Les données récoltées sont anonymisées.

?

Google Analytics

En savoir plus